Bonjour a tous,
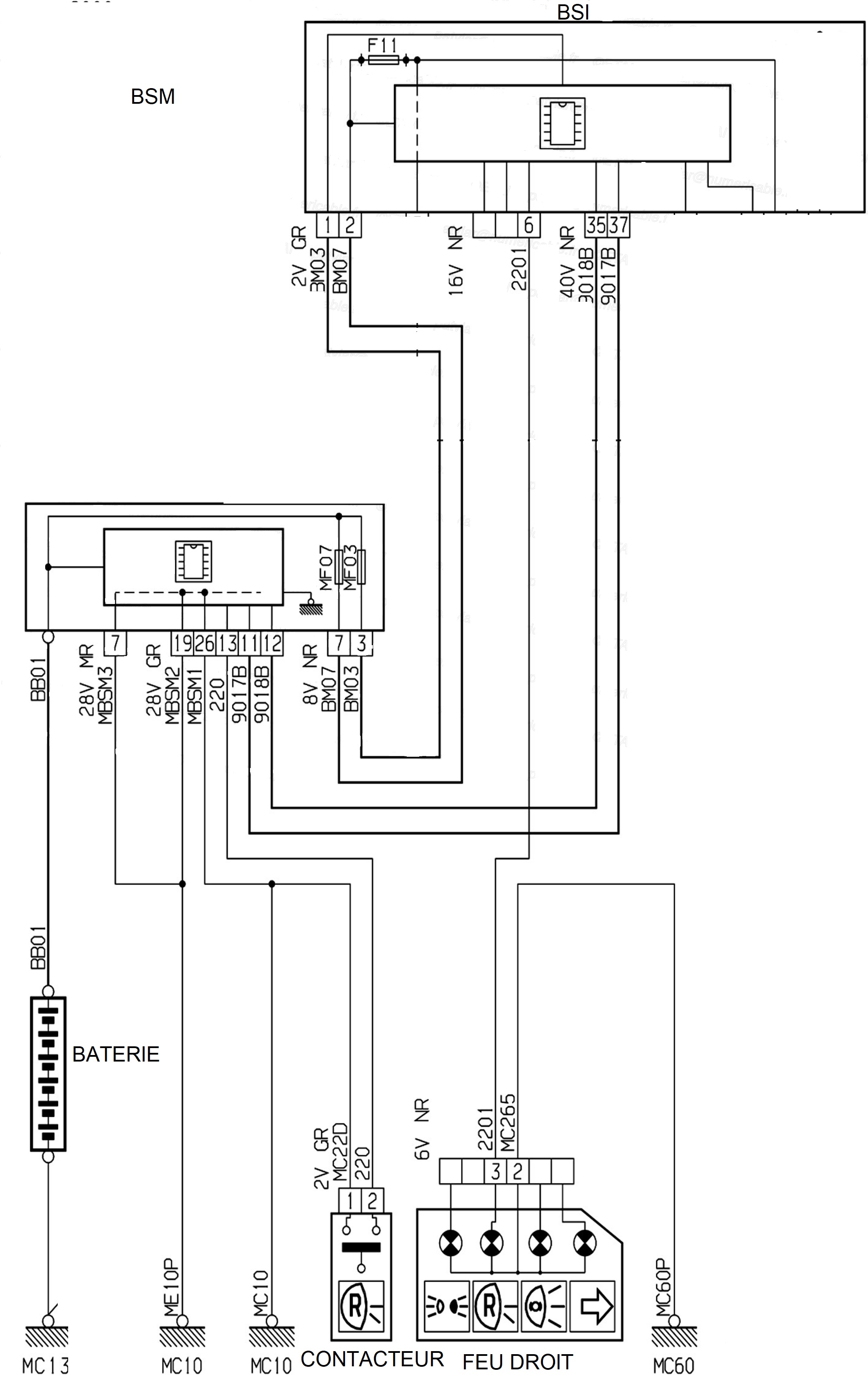
Apres avoir eu un prb de clignotant arrière droit, refait la masse du feux et vérifié les connections, j'ai a m'occuper de la marche arrière ou l'ampoule s'allume pas.
J'ai changé avec plusieurs ampoules neuf, pas ca.
J'ai shunter le faisceau du contacteur, pas ca.
Mon contacteur est ok en mesurant sa résistance.
La masse du faisceau du contacteur est ok.
Sur le second fils sur le contacteur j'ai que 3V. Mon prb est-il la?
Vu que c'est relié au BSI est ce en 5V normalement? la section des fils est en 1.5mm².
Je plancherais sur une alim en 12v normalement.
Ou BSI qui envoie pas l'alim sur l'ampoule?
Si l'un d'entre vous pouvais me dire quel alim il a sur la prise du contacteur.
Mille merci
