feux recule s'allume plus

Tout ce qui touche à l'electronique de la 308 ainsi qu'à l'electricité.

feux recule s'allume plus

Messagede opcman » Jeu 31 Mai 18 09:59

Bonjour a tous,

Apres avoir eu un prb de clignotant arrière droit, refait la masse du feux et vérifié les connections, j'ai a m'occuper de la marche arrière ou l'ampoule s'allume pas.
J'ai changé avec plusieurs ampoules neuf, pas ca.
J'ai shunter le faisceau du contacteur, pas ca.
Mon contacteur est ok en mesurant sa résistance.
La masse du faisceau du contacteur est ok.
Sur le second fils sur le contacteur j'ai que 3V. Mon prb est-il la?
Vu que c'est relié au BSI est ce en 5V normalement? la section des fils est en 1.5mm².
Je plancherais sur une alim en 12v normalement.
Ou BSI qui envoie pas l'alim sur l'ampoule?

Si l'un d'entre vous pouvais me dire quel alim il a sur la prise du contacteur.

Mille merci
opcman
308 Addicted
 
Messages: 32
Inscription: Mer 07 Mar 18 15:26
Peugeot 308: VTi 1,6L 120 ch

feux recule s'allume plus

Publicité

Publicité
 

Re: feux recule s'allume plus

Messagede matou » Jeu 31 Mai 18 16:46

Bonjour

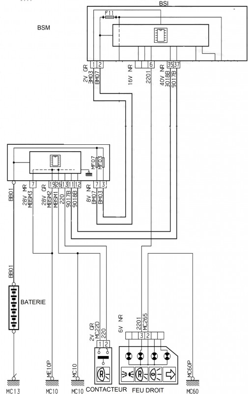
Le contact marche arrière c’est une masse.

Elle est envoyée sur le BSM. Connecteur 28 voie gris pin 13.

LE BSM envoie l’info au BSI par le réseau CAN.et aussi au calculateur moteur.

Le BSI alimente la lampe du feu par une sortie électronique. Connecteur 16 voies noir pin 6.

le Connecteur du feu 6 voies noir pin n°3 et masse

Pourquoi faire simple !
Dernière édition par matou le Jeu 07 Juin 18 17:43, édité 1 fois.
matou
308 Addicted
 
Messages: 81
Inscription: Lun 26 Mar 18 15:41
Peugeot 308: THP 1,6L 150/156 ch

Re: feux recule s'allume plus

Messagede opcman » Jeu 07 Juin 18 11:00

Salut Matou

Milles merci pour ton retour. Je cherche à savoir d'où vient l'alimentation sur le contacteur (12V je présume), vu que c'est le BSM qui attend la masse?

Avec cela je shunterais directement après le BSI afin que l'ampoule s'allume directement du contacteur.
Les fils du contacteur sont de section raisonnable surement 1.5mm², donc peuvent supporter allumage d'une ampoules!

Merci Matou
opcman
308 Addicted
 
Messages: 32
Inscription: Mer 07 Mar 18 15:26
Peugeot 308: VTi 1,6L 120 ch

Re: feux recule s'allume plus

Messagede matou » Jeu 07 Juin 18 17:48

bonjour

le contacteur est branché sur la masse et envoie la masse vers le BSM .pas du 12v+.

voici le schéma de la partie concernée que Jai simplifié
sans-titre.jpg
matou
308 Addicted
 
Messages: 81
Inscription: Lun 26 Mar 18 15:41
Peugeot 308: THP 1,6L 150/156 ch


Retourner vers Electricité & Electronique

Qui est en ligne

Utilisateurs parcourant ce forum: Aucun utilisateur enregistré et 3 invités

cron